375.000€
Partilhar
Referência
26_016_CS
Natureza
Venda
Tipo de Imóvel
Apartamento
Tipologia
T1
Estado
Remodelado
Certificado energético
B
Ano
2023
Distrito
Porto
Concelho
Porto
Freguesia
Cedofeita, Ildefonso, Sé, Miragaia, Nicolau, Vitória
Código Postal
4050
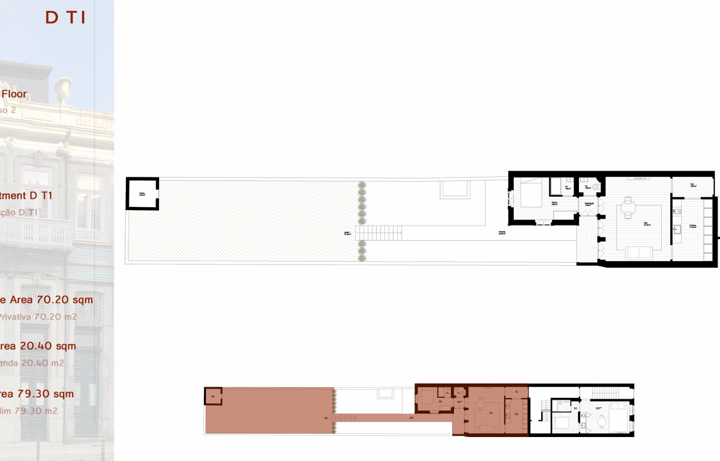
Área Útil
65 m2
Área Bruta
68 m2
Área de Terreno
0 m2
Este elegante apartamento T1, localizado no coração do Porto, é um exemplo primoroso de conforto e funcionalidade. O interior destaca-se pela sua luminosidade natural e pelas acabamentos em madeira que conferem uma sensação acolhedora ao espaço. A ventilação forçada garante um ambiente saudável durante todo o ano, enquanto a climatização por ar condicionado proporciona um refúgio agradável nos meses mais quentes. Com armário de roupa/closet otimizado para armazenamento eficiente e adaptado à mobilidade reduzida, este lar é perfeito tanto para famílias com crianças como para aqueles que buscam praticidade sem abrir mão da sofisticação. No exterior do imóvel encontram-se áreas comuns bem cuidadas que favorecem a convivência entre os moradores. As zonas verdes circundantes são ideais para momentos relaxantes ou passeios familiares agradáveis com animais de estimação permitidos neste condomínio harmonioso. Além disso, as características acústicas e térmicas garantem sossego no dia-a-dia mesmo estando próximo dos caminhos principais da cidade. A localização deste apartamento não poderia ser melhor: situado numa zona central perto das melhores comodidades urbanas; centros comerciais diversos estão nas imediações assim como escolas reconhecidas, farmácias essenciais aos cuidados diários e clínicas médicas convenientes à saúde dos residentes.Numa curta distância pode ainda encontrar transportes públicos eficazes incluindo metro já muito próximos garantindo fácil acesso às praias vizinhas tão apreciadas na região norte. Para além das qualidades intrínsecas deste belíssimo imóvel há também algo singular nele: o calor humano respirável pelos seus corredores iluminados torna cada visita única.Esta propriedade convida-o não apenas a habitar mas sim criar memórias inesquecíveis num verdadeiro lar onde cada detalhe foi pensado minuciosamente.Marca já hoje uma visita!
| Gerais | Pisos: | 3 |
|---|---|---|
| Gerais | Nº de Divisões : | 1 |
| Gerais | Ventilação forçada: | Sim |
| Gerais | Nº de Casas de Banho: | 1 |
| Gerais | Lavandaria: | Sim |
| Gerais | Armário de roupa / closet: | Sim |
| Gerais | Adaptado a mobilidade reduzida: | Sim |
| Gerais | Recomendado para crianças: | Sim |
| Climatização | Ar condicionado: | Sim |
| Caixilharia | Madeira: | Sim |
| Caixilharia | Vidro Duplo: | Sim |
| Vistas | Campo: | Sim |
| Exposição Solar | Sul: | Sim |
| Quarto de Banho | Próprio: | Sim |
| Luz Natural | Muito Iluminado: | Sim |
| Ar Condicionado | Completo: | Sim |
| Fuga de Fumos | Chaminé mecânica: | Sim |
| Infraestruturas | Esgotos: | Sim |
| Cozinha | Móveis lacado: | Sim |
| Cozinha | Placa: | Sim |
| Cozinha | Forno: | Sim |
| Cozinha | Exaustor: | Sim |
| Cozinha | Micro-ondas: | Sim |
| Cozinha | Frigorífico: | Sim |
| Cozinha | Esquentador: | Sim |
| Cozinha | Máquina de lavar roupa: | Sim |
| Pavimento | Madeira: | Sim |
| Gerais | Nº de Frentes : | 2 |
|---|---|---|
| Gerais | Nº de Pisos: | 3 |
| Gerais | Permite animais: | Sim |
| Gerais | Acesso mobilidade reduzida: | Sim |
| Tipo de Empreendimento | Habitação: | Sim |
| Isolamento | Acústico: | Sim |
| Isolamento | Térmico: | Sim |
| Revestimento Exterior | Pastilha: | Sim |
| Água | Companhia: | Sim |
| Gerais | Aeroporto: | Sim |
|---|---|---|
| Gerais | Auto-Estrada: | Sim |
| Gerais | Comboio: | Sim |
| Gerais | Metro: | Sim |
| Gerais | Perto de mar: | Sim |
| Gerais | Transportes públicos: | Sim |
| Centralidade | Centro da cidade: | Sim |
| Proximidade | Bancos: | Sim |
| Proximidade | Bombeiros: | Sim |
| Proximidade | Centros comerciais: | Sim |
| Proximidade | Clínicas: | Sim |
| Proximidade | Escolas: | Sim |
| Proximidade | Farmácias: | Sim |
| Proximidade | Ginásios: | Sim |
| Proximidade | Hospitais: | Sim |
| Proximidade | Jardins: | Sim |
| Proximidade | Jardins de infância: | Sim |
| Proximidade | Padarias: | Sim |
| Proximidade | Polícia: | Sim |
| Proximidade | Praias: | Sim |
| Proximidade | Serviços públicos: | Sim |
| Proximidade | Supermercados: | Sim |
| Proximidade | Universidade: | Sim |
| Acessos | Alcatrão: | Sim |
Este imóvel não tem áreas definidas.
Porto Lux Real Estate
RUA DE ENTRE CAMPOS 141 , 4410-180, PortoCristina Santos
Fundadora e Gerente
935353746
(Chamada para a rede móvel nacional)
Porto, Porto, Cedofeita, Ildefonso, Sé, Miragaia, Nicolau, Vitória
410.000€
Ref: 26_01_11
Ref: 26_01_11
Porto, Porto, Cedofeita, Ildefonso, Sé, Miragaia, Nicolau, Vitória
450.000€
Ref: 26_0161_CS
Ref: 26_0161_CS
Porto, Porto, Cedofeita, Ildefonso, Sé, Miragaia, Nicolau, Vitória
285.000€
Ref: 26_192_CS
Ref: 26_192_CS